おすすめの駅
12棟 56件
-
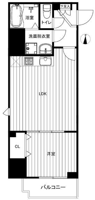
18.5万円~19.1万円 管理/共益費15,000円
40.54㎡ (1LDK) /築5年 /11階建
- オートロック
- エレベーター
- 宅配ボックス
- 敷地内ごみ置き場
- バイク置場あり
-
13.46万円 管理/共益費5,000円
20.13㎡ (1K) /築18年 /8階建
- オートロック
- エレベーター
- 宅配ボックス
- 公共下水
大島駅周辺への引っ越しをお考えなら「新品家具付きマンション大島6(KaGood東京)」。セキュリティ面は、TVインターホン・オートロックなど充実しているので安心して生活できます。浴室乾燥機をつけて湿気を除去すればカビの発生を予防できる、浴室乾燥機付きの物件です。収納はシューズボックス・クロゼットなどが備え付けられているので、衣類や日用品の収納に重宝します。設備条件が充実した月々13.46万円台のお部屋です。住まい探しをするなら、ぜひ当社にお任せを!お客様が満足していただけるよう、しっかりとサポートいたします。また、ご要望やご不明な点などございましたら、お気軽にお問い合わせ下さい。
-
12.7万円~13万円 管理/共益費8,000円
25.76㎡ (1DK) /築2年 /8階建
- 駐輪場
- オートロック
- エレベーター
- 光ファイバー
- 宅配ボックス
収納はクロゼット・シューズボックスなど豊富なので、広々と空間を利用することも可能です。不在時でも荷物を受け取れるため、時間調整の手間が省ける宅配ボックスが付いています。セキュリティ面は、TVインターホン・オートロックなど充実しているので安心して生活できます。室内設備は洗面所独立・浴室乾燥機など充実した設備を備え付けています。2つの調理を同時に進行できて料理の効率を上げられる、2口コンロが付いています。お仕事でパソコンを使う方に好評の光回線導入の物件です。お引越しをお考えの方は当社へお任せください。江東区エリアや住吉付近で新しくスタートさせる生活を快適にしましょう。
-
21万円~21.9万円 管理/共益費15,000円
41.00㎡ (1LDK) /築1年 /14階建
- オートロック
- エレベーター
- 宅配ボックス
- 防犯カメラ
- 24時間ゴミ出し可
ぜひ一度見ていただきたい、「パレスシンシア江東橋」です。徒歩7分の距離に江東区立第三亀戸中学校があるのも魅力。生乾きの洗濯物を乾かしたい時でもサッと乾燥できる、浴室乾燥機を備え付けております。セキュリティ面は、オートロック・TVインターホンなどを設置しているので安全面でも優れております。利用可能な駅が2駅あり、利便性の高い物件です。墨田区エリアや総武線錦糸町付近までのお引っ越しをご検討されているなら、お問い合わせやご連絡をお待ちしております。知識が豊富なスタッフがご対応させて頂きます。
-
22.5万円 管理/共益費15,000円
40.45㎡ (1LDK) /築2年 /14階建
- オートロック
- エレベーター
- 宅配ボックス
- 24時間ゴミ出し可
新着情報:ベルファース錦糸町Southの空室情報ならコチラ。近くにはローソン 墨田江東橋五丁目店(徒歩5分)がありちょっとした買い物に便利です。建物のエントランスには安全性に優れているオートロック機能が付いております。室内設備は浴室乾燥機・洗面所独立など豊富に揃っており、過ごしやすいお部屋になっております。共用部には宅配ボックス・ゴミ出し24時間OKなど様々な設備やサービスが揃っているので便利です。できるだけ早めに不動産情報を集めたい方は当社スタッフまでご連絡ください。地域の不動産情報をいち早くお届けします。
-
17.3万円~28.3万円 管理/共益費12,000円
40.00㎡~64.91㎡ (1LDK~2LDK) /築18年 /15階建
- オートロック
- エレベーター
- CATV
- 光ファイバー
- 宅配ボックス
- 防犯カメラ
こだわりポイント満載のエスティメゾン錦糸町Ⅱ。徒歩6分の距離に東京都立両国高等学校・付属中学校があるのも魅力。宅配業者の再配達時間を過ぎたら荷物を受け取りが後日になってしまいますが、宅配ボックスがあるのでいつでも受け取ることができその心配がいりません。セキュリティ面は、オートロック・TVインターホンなど充実しているので安心して生活できます。快適な暮らしがしたいとお考えの方に、ぜひご紹介したい街があります。それは墨田区エリアです。住環境が整っているので、不便さをあまり感じない生活が可能です。ぜひお気軽にご連絡下さい。
-
23.1万円 管理/共益費12,000円
41.09㎡ (1LDK) /築3年 /11階建
- オートロック
- エレベーター
- CATV
- 宅配ボックス
- 24時間ゴミ出し可
こだわりで選びたい方におすすめ。墨田区エリアで住まいをお探しなら「パークアクシス菊川ステーションイースト」。菊川公園まで徒歩5分と近いです。室内設備は追い焚き・CATV・CSなどが揃っているので、快適に過ごしやすいお部屋になります。外装もおしゃれで快適な生活をおくることができるマンションです。必要なものは決断だけ。毎月23.1万円で至高の生活を手に入れましょう。墨田区は住環境が充実しており、利便性の高い暮らしをするならこのエリアです。当社は地域に密着し、多種多様な賃貸情報を取り扱っているので、ぜひご連絡下さい。
-
新築
13.8万円~19.5万円 管理/共益費12,000円~15,000円
26.83㎡~39.85㎡ (1R~1LDK) /新築 /14階建
- オートロック
- エレベーター
- CATV
- 宅配ボックス
- 敷地内ごみ置き場
- バイク置場あり
パークアクシス西大島コンフォートスクエア:西大島駅にも近くて便利。共用部には宅配ボックス・ゴミ出し24時間OKなどが備わっておりとても充実しています。オートロック機能が付いているのでドアの前まで知らない人が入って来る危険が減り、安心して暮らせます。室内設備は洗面所独立・浴室乾燥機など豊富に揃っており、過ごしやすいお部屋になっております。新築の物件のご紹介です。システムキッチンは収納性に優れているため、キッチン回り物であふれるのを防げます。江東区での住まい探しを当社スタッフがサポート致します。まずはご希望条件などをお申しつけください。それを元にお客様に合ったお住まいをご紹介いたします。
-
26.5万円 管理/共益費15,000円
50.95㎡ (3LDK) /築2年 /14階建
- オートロック
- エレベーター
- 宅配ボックス
- 防犯カメラ
便利なスーパー「まいばすけっと 錦糸町駅西店」まで115mです。室内設備は浴室乾燥機・洗面所独立など大変充実しております。セキュリティ面は、TVインターホン・オートロックなど充実しているので安心して生活できます。収納はクロゼット・シューズWICなどが備え付けられているので、衣類や日用品の収納に重宝します。共用部には宅配ボックスが備え付けられているため、忙しくて在宅時間が少なくても荷物を受け取れます。当社は、多種多様な賃貸情報を取り扱っております。スタッフ一同、快適な住まいをご提供いただけるよう、全力で努めてまいりますので、ぜひ当社にお任せ下さい。
-
21.3万円 管理/共益費16,000円
40.27㎡ (1LDK) /築2年 /14階建
- オートロック
- エレベーター
- 宅配ボックス
- 防犯カメラ
- 24時間ゴミ出し可
室内設備は浴室乾燥機・洗面所独立などが揃っているので、快適に過ごしやすいお部屋になります。共用部にはゴミ出し24時間OK・宅配ボックスなどが揃っております。セキュリティ面は、TVインターホン・オートロックなどを備え付けているので安心して暮らせます。収納はシューズボックス・ウォークインクロゼットなどが備え付けられているので、衣類や日用品の収納に重宝します。多くの方にご好評の、BS対応のマンションとなっています。11階にあるお部屋です、ぜひご覧ください。これから先、どんな暮らしを実現していきたいですか。新しい住まいでハリのある生活を送っていきましょう。お問い合わせもお気軽にご連絡ください。
-
新築
15.2万円~31.2万円 管理/共益費15,000円~18,000円
30.06㎡~53.79㎡ (1DK~2LDK) /新築 /14階建
- オートロック
- エレベーター
- 宅配ボックス
- 防犯カメラ
- 24時間ゴミ出し可
「Daffitto錦糸町」のここがイチオシ。歩いて340mの場所に、まいばすけっと 江東亀戸1丁目店があります。共用部には宅配ボックス・ゴミ出し24時間OKなどが備わっておりとても充実しています。室内設備は浴室乾燥機・洗面所独立・食器洗乾燥機など豊富に揃っており、過ごしやすいお部屋になっております。セキュリティ面は、TVインターホン・オートロックなどを備え付けているので安心して暮らせます。墨田区は住環境が充実しており、利便性の高い暮らしをするならこのエリアです。当社は地域に密着し、多種多様な賃貸情報を取り扱っているので、ぜひご連絡下さい。
-
18.2万円 管理/共益費13,000円
40.34㎡ (1LDK) /築4年 /11階建
- オートロック
- エレベーター
- 宅配ボックス
- 敷地内ごみ置き場
- バイク置場あり
- 24時間ゴミ出し可
菊川駅周辺への引っ越しをお考えなら「RJRプレシア菊川駅前」。共用部にはゴミ出し24時間OK・宅配ボックスなど様々な設備やサービスが揃っているので便利です。知らない人が玄関前まで来ることが減るので防犯対策につながるオートロック機能がついております。室内設備は洗面所独立・浴室乾燥機など大変充実しております。ニーズが高いからこその2026年5月の入居期日指定。利便性の高い暮らしをするなら墨田区でいかがでしょうか。賃貸住宅情報をお探しの際には、ぜひお気軽に当社までご連絡下さい。しっかりとサポート致します。
室内設備は洗面所独立・浴室乾燥機など大変充実しております。来訪者を確認してから鍵を開けられるため安全面で優れているオートロック機能がついています。共用部には宅配ボックスが備え付けられているため、日々忙しくて家にいる時間が少なくても荷物を受け取れます。こちらの物件は2026年6月の入居期日指定があります。転居先に住み心地も良いこちらの賃貸物件。充実した新生活を過ごしましょう。フローリング仕様のマンションです。安心で快適な暮らしをしたいとお考えなら、ぜひ当社へお任せ下さい。お客様のライフスタイルに適した賃貸物件のご紹介をいたします。